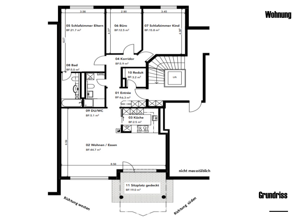
4.5-Zimmer Wohnung, Baar

Nach oben